物件詳細

長野市南千歳1丁目 第一荒井ビル 4F-E 月額 148,500円

貸店舗・事務所
  • 第一荒井ビル 4F-E
  • 第一荒井ビル 4F-E
  • 第一荒井ビル 4F-E
  • 第一荒井ビル 4F-E

大きな地図で見る

有限会社 エステートエージェント
〒380-0822 長野県長野市南千歳町857
TEL 026-228-7775

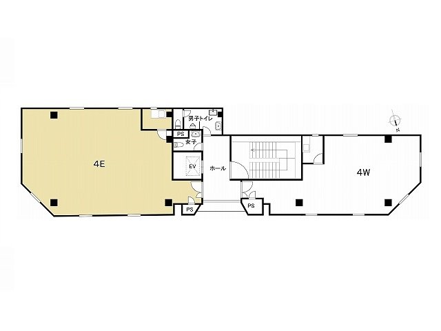
物件種別貸店舗・事務所 建物名第一荒井ビル
賃料月額 148,500円(税込) 階建/階6階建の4階部分
礼金/敷金礼金1ヶ月/敷金2ヶ月 面積89.63m² (27.11坪)
共益費月額 29,700円(税込) 築年月1978年5月
保険必須 建物構造鉄骨造
駐車場なし 現況空/即時引渡可
契約期間3年 取引態様仲介(手数料は賃料1ヶ月分)
設備エアコン・都市ガス・共同トイレ
備考日当り良好・飲食店不可・24時間利用可・24時間セキュリティ
原則として家賃保証代行を利用していただきます

この物件に関するお問い合わせ

この物件に関するEメールでのお問合わせは下記フォームからお願いいたします

※半角英数字でご入力ください

PAGE TOP

CLOSE