物件詳細

長野市南千歳2丁目 柳沢ビル1F 月額 330,000円

貸店舗
  • 柳沢ビル1F
  • 柳沢ビル1F
  • 柳沢ビル1F
  • 柳沢ビル1F
検討中

大きな地図で見る

有限会社 エステートエージェント
〒380-0822 長野県長野市南千歳町857
TEL 026-228-7775

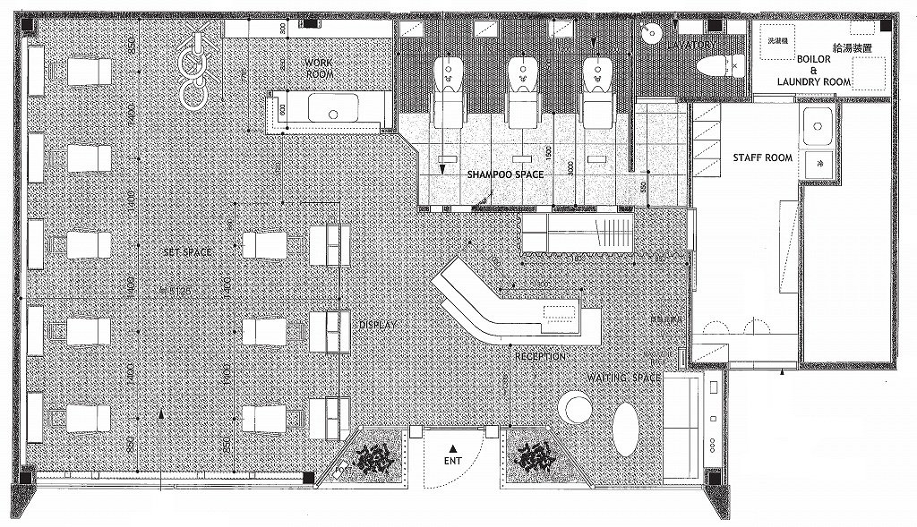
物件種別貸店舗 建物名柳沢ビル
賃料月額 330,000円(税込) 階建/階2階建の1階部分
礼金/敷金礼金1ヶ月/敷金5ヶ月 面積90.53m² (27.38坪)
共益費月額 0円(税込) 築年月1988年4月
保険必須 建物構造鉄骨造
駐車場有り(3ナンバー車3台駐車可) 現況
契約期間3年 取引態様仲介(手数料は賃料1ヶ月分)
設備エアコン・給湯・ガス・トイレ等、美容室の居抜
備考家賃保証代行利用が原則となります(代行料:1ヶ月の賃料+管理費等、以降毎年10%の更新料)

この物件に関するお問い合わせ

この物件に関するEメールでのお問合わせは下記フォームからお願いいたします

※半角英数字でご入力ください

PAGE TOP

CLOSE