物件詳細

長野市南千歳町1丁目 正和ビルB1 月額 216,000円

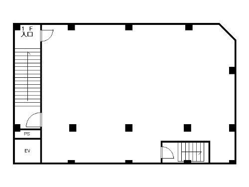
貸倉庫
  • 正和ビルB1
  • 正和ビルB1
  • 正和ビルB1

大きな地図で見る

有限会社 エステートエージェント
〒380-0822 長野県長野市南千歳町857
TEL 026-228-7775

物件種別貸倉庫 建物名正和ビル
賃料月額 216,000円(税込) 階建/階5階建の地下1階部分
礼金/敷金礼金1ヶ月/敷金4ヶ月 面積129.68m² (39.22坪)
共益費月額 0円(税込) 築年月昭和51年5月
保険 建物構造RC
駐車場なし 現況空/即時引渡可
契約期間3年 取引態様仲介(手数料は賃料1ヶ月分)
設備上下水、都市ガス、トイレ,エアコン
備考賃料は相談に応じます

この物件に関するお問い合わせ

この物件に関するEメールでのお問合わせは下記フォームからお願いいたします

※半角英数字でご入力ください

PAGE TOP

CLOSE